My house has a land area of ​​2,000 m2 in Thach That (Hanoi). I want to build a simple, economical and airy one. The house needs a living room, kitchen, 3 bedrooms for grandparents, my spouse and 2 sons. I like having a large lounge or patio surround. Am I expected enough 800 million dong?
 
The land is at the fork so the main entrance was hit by a straight line into the house, near the back with sharp corners. KTS consultants help me with the cost of construction and design to overcome the disadvantages. (Kim Hoa).
 
Architect Vu Quang Dinh (Aspace Architecture) consultants as follows:
 
The main gate is at the fork for feeling uneasy and safe. The land has many contiguous sides so you can arrange the entrance from the junction. The excess area of ​​the land will be planted with green trees that soften the space and create a feeling of a square, green space.
                                      
 
                                                                              Entrance layout deviates from the crossroads.
 
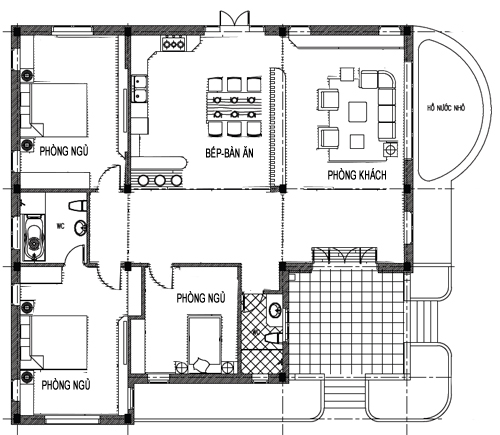
With the demand for such rooms, the family only needs to build a one-story house on an area of ​​160 m2. In addition to the living room, open kitchen, large hall, the bedrooms are 18-20 m2 area. There is a bedroom with separate WC, a common toilet for the whole family.
 
The house should be located in the middle of the grounds to be separated from the outside paths by gardens. Outdoor garages, lawns, gourds, pumpkins, greens ... The vegetable garden is located on the rear porch. The pitch should be poured concrete or perforated concrete slit opening, the grass grows will prune, create natural beauty.
                                          
 
                            Perspective of the house in the middle of the green garden, concrete yard with openings to grass grow.
 
In order to stay cool, in addition to planting trees around the campus, the way to open the door, thick wall construction is also important. Opening the door to pick up the wind, wind out will make the house always have fresh air circulation, cool summer, warm winter.
 
The height of the house should be just right (about 3m) is beautiful, convenient to use, saving materials, labor.
 
You can apply the package as follows: Package savings 4.3 million / m2; Normal package of 4.8 million / m2; Package is 5.8 million / m2.
                                                    
 
                                                                                               Arrange the room in the house.
 
This package includes raw materials, finishing materials, labor, lighting equipment, sanitary wares, stoves, stairs, tiles, doors, balustrades. Depending on the level of investment, the homeowner balances the selection of materials to suit and ensure quality and aesthetics.
 
With the demand and funding, he should use the package 4.3 million / m2, using the materials and equipment produced by Vietnam. Homeowners can spend time in conjunction with architects to explore the types, aesthetics and quality.

 

 

 

News other